Description
Licht appartement met ruim balkon aan de Overtoom
Bent u op zoek naar een licht appartement met een ruim balkon op een toplocatie in Amsterdam, waar u bovendien uw eigen woonwensen kunt realiseren? Dan is dit unieke appartement aan de Overtoom precies wat u zoekt.
Indeling
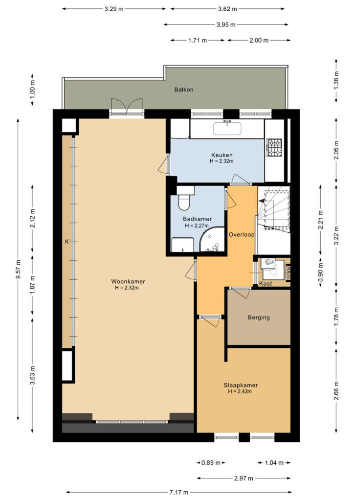
Via de gezamenlijke entree bereikt u de hal op de derde verdieping, die toegang biedt tot uw eigen entree op de vierde verdieping.
Bij binnenkomst komt u op de overloop. Aan de achterzijde van het appartement bevindt zich de keuken, voorzien van een gasfornuis, oven, koelkast/vriezer en vaatwasser. Aansluitend vindt u de zeer lichte en ruime woonkamer. Deze biedt aan de achterzijde toegang tot een ruim balkon en aan de voorzijde een prachtig uitzicht richting het Vondelpark.
Aan de voorzijde van de woning bevindt zich een goed bemeten slaapkamer. Daarnaast is er een extra ruimte die uitstekend kan dienen als inloopkast of werkruimte. Tevens is er een separate berging aanwezig met aansluiting voor de wasmachine.
De badkamer is bereikbaar via de overloop en is voorzien van een douche, wastafel en toilet.
Dit appartement biedt u een unieke kans om comfortabel en stijlvol te wonen op een van de meest geliefde locaties van Amsterdam.
De kenmerken op een rij:
– Energielabel A
– Woonoppervlakte circa 73 m²
– Ruim balkon aan de achterzijde
– Eeuwigdurende erfpacht (canon circa € 150 per jaar)
– VvE-bijdrage € 135 per maand
Locatie
De Overtoom is een van de meest levendige en populaire straten van Amsterdam Oud-West. Op loopafstand vindt u het Vondelpark, ideaal voor ontspanning, sport en recreatie. In de directe omgeving zijn tal van gezellige cafés, restaurants en winkels te vinden. Daarnaast is de bereikbaarheid uitstekend: diverse tramverbindingen stoppen praktisch voor de deur en brengen u snel naar onder andere het centrum en Station Zuid.
Ziet u zichzelf hier wonen?
Neem vandaag nog contact met ons op voor een bezichtiging – dit zou zomaar uw nieuwe thuis kunnen zijn.
DISCLAIMER
Deze informatie is door ons met de nodige zorgvuldigheid samengesteld. Onzerzijds wordt echter geen enkele aansprakelijkheid aanvaard voor enige onvolledigheid, onjuistheid of anderszins, dan wel de gevolgen daarvan. Alle opgegeven maten en oppervlakten zijn indicatief.
Koper heeft zijn eigen onderzoek plicht naar alle zaken die voor hem of haar van belang zijn. Met betrekking tot deze woning is de makelaar adviseur van verkoper. Wij adviseren u een deskundige makelaar in te schakelen die u begeleidt bij het aankoopproces. Indien u specifieke wensen heeft omtrent de woning, adviseren wij u deze tijdig kenbaar te maken aan uw aankopend makelaar en hiernaar zelfstandig onderzoek te (laten) doen. Indien u geen deskundige vertegenwoordiger inschakelt, acht u zich volgens de wet deskundige genoeg om alle zaken die van belang zijn te kunnen overzien.
De Meetinstructie is gebaseerd op de NEN2580. Het object is opgemeten door een professionele organisatie en eventuele discrepanties in de gegeven metingen kunnen HHW Makelaars niet worden aangerekend. Koper verklaart in de gelegenheid te zijn gesteld om een eigen NEN 2580 meting te (laten) uitvoeren.



























